Historic Downtown Flat, # 4 - Astoria
Explore the USA with comfortable vacation rentals across iconic cities and scenic destinations. From New York’s bustling streets to Miami’s sunny beaches and San Francisco’s stunning bay views, find the perfect apartment to suit your travel style. With options for budget stays and luxury accommodations, these rentals place you close to major attractions, parks, shopping, and dining. Ideal for families, couples, or solo travelers looking to make the most of their American adventure.
Historic Downtown Flat, # 4
Astoria 1559 Exchange Street
WiFi
We speak
7.0/10
WiFi
We speak
7.0/10
Featuring river views, Historic Downtown Flat, # 4 features accommodation with a garden and a balcony, around 35 km from Necanicum Guard Station. The property is situated 40 km from Haystack Gallery, 42 km from Haystack Hill State Park and 28 km from Seaside Civic Convention Center. Free WiFi is available throughout the property and Seaside Golf Course is 30 km away.
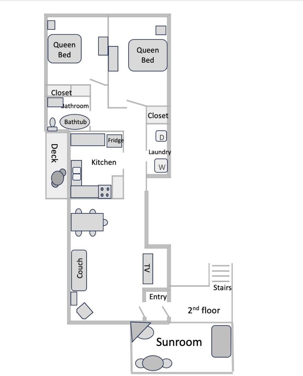
Boasting a DVD player, the spacious apartment has a fully equipped kitchen with an oven, a microwave and a toaster, a living room with a seating area and a dining area, 2 bedrooms, and 1 bathroom with a bath and a shower. Towels and bed linen are offered in the apartment. For added privacy, the accommodation features a private entrance.
Seaside Aquarium is 28 km from the apartment, while Elmer Feldenheimer State Park is 32 km from the property. Portland International Airport is 150 km away.
The hotel day starts from hour 16:00 and ends at 11:00.
Guests are required to show a photo identification and credit card upon check-in. Please note thatSpecial Requests are subject to availability and additional charges may apply.
This property will not accommodate hen, stag or similar parties.
Two-Bedroom Apartment with River View. This spacious apartment features 1 living room, 2 separate bedrooms and 1 bathroom with a bath and free toiletries. Meals can be prepared in the well-fitted kitchen, which has a stovetop, a refrigerator, kitchenware and an oven. The apartment features a flat-screen TV with cable channels, a washing machine, a private entrance, a tea and coffee maker as well as river views. The unit has 3 beds.
Free WiFi
CCTV outside property
Cashless payment available
Board games/puzzles
Family rooms
Non-smoking rooms
Garden
Non-smoking throughout
Terrace
Luggage storage
CCTV in common areas
Internet services
Linens, towels and laundry washed in accordance with local authority guidelines
WiFi
Staff follow all safety protocols as directed by local authorities
Contactless check-in/check-out
WiFi available in all areas
